
臺灣建築師毛森江在與臺南市區僅一橋之隔的漁光島上的自留地中蓋一所夢想中的宅子,取名"毛屋",供友人歇腳,也讓無數設計愛好者體驗、欣賞和發呆。
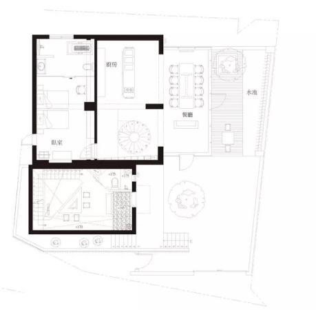
一層平面圖

毛屋有幾部分組成,分為圖中這套自住的小型別墅、一個運動場大小的毛院子和名為"金毛屋"的民宿空間。

"切割"是毛森江建築手法中極為重要的一點,"若不切割,你便無法體會空間的高度和深度。"

毛屋中到處都是發呆的場所,二樓原本略顯逼仄的天井處,巧妙地擺放了三角形的桌子和兩把椅子,頓時鮮活、愜意起來。

民宿部分的空間結構更為敞亮,屋內放置了毛森江多年來積攢下來的書、傢俱、字畫和各種擺件。沿著室內螺旋而上的扶梯,擱架中的書籍、雜誌便可輕易取得。
民宿公共廚房的設計非常摩登。
率性的清水混凝土電視牆,頗具工業時代美感。
民宿裡的客臥,獨特的採光設計帶來別樣建築體驗。
民宿裡的另一組套房,同樣簡潔、利落而摩登。

毛院子在"毛屋"建築群中充當訪客們的飯廳和客廳。一張用整塊臺灣冷杉打造的千年木桌,將天南地北的人們圍聚在一起。
毛院外愜意的戶外空間,天好的時候,訪客都喜歡相聚在這裡,屋頂兼露臺的設計細節非常摩登。

漁光島雖然與臺南市區僅一橋之隔,但島民更願意保留原始、淳樸的生活方式。載我們報道團隊入島的司機,雖年過半百,卻還是第一次載客進入漁光島。這樣原生態的所在,也許的確值得一探。
參考資料
- 台南漁光島深度旅遊指南:建築美學與秘境探索
- 漁光島藝術季最新資訊
- 臺南市歷史建築導覽手冊
- 安平區特色民宿評比報告